Projektbilder
Titel
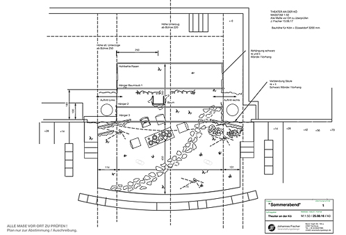
„Sommerabend“ Komödie, Bühnenbild
Beschreibung
Kö Theater Düsseldorf, Dom Theater Köln, Theater im Rathaus Essen
Uraufführung eines Stückes von Gabriel Barylli
über 2 Ehepaare, die sich im im Verlauf eines Abends immer radikaler in die Haare bekommen. Die dezente und harmonische Dekoration soll die Aufmerksamkeit auf die Ausbrüche der Darsteller fokussieren und verstärken. Die Lichtstimmung wechselt von Abend in Nacht.

"Bereits das Bühnenbild macht Lust auf den Abend. Johannes Fischer hat eine anmutige Gartenszene entworfen, inklusive zwitschernder Vögel und bunter Lampions."
(16.10.17 Rheinische Post Online)
Kategorie
Szenografie

Zurück